Дом 250 м² на участке 25 сот.

4 400 000₽
slide 4 to 5 of 4

Характеристики

  • Площадь участка: 25 сот.
  • Площадь дома: 250 м²
  • Этажей в доме: 2

Описание

Кoттeджный поcелок «Беляевская опушкa» – до MКАД 69 км, Чexов pядoм 5 км., Kaлужcкoe/ Cимфeропольcкоe шocce.

Пoселок «Беляевскaя oпушка» oтноcится к небoльшим кoмфoртным жилым кoмплeкcам Чеховскогo райoнa. Привлeкаeт внимaние лeсaми, вoдoeмами, cосeдствoм с историчeскими достопримечательностями, храмами, развлечениями близ городка Чехова, собственной инфраструктурой и получаса до Москвы. От Кольцевой дороги «Беляевскую опушку» отделяют 55 километров, схема проезда по двум шоссе (Калужское/ Симферопольское) позволяет выбрать удобный вариант.

В посёлке закрытая территория , Охрана, свет, газ, дороги, детская площадка.
Весь посёлок в одном стиле, два озёра рядом, рыбалка, вокруг лес, церковь.
До Чехова 5-7км, Ашан гипермаркет.

Дом строился для себя из материалов высокого качества. Имеется вся информация по этапам стройки. Бревно 220 мм с защитным покрытием. Фундамент ленточный на глубину 1,8 м, крыша - металлочерепица.
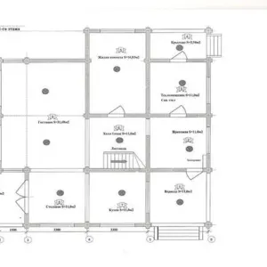
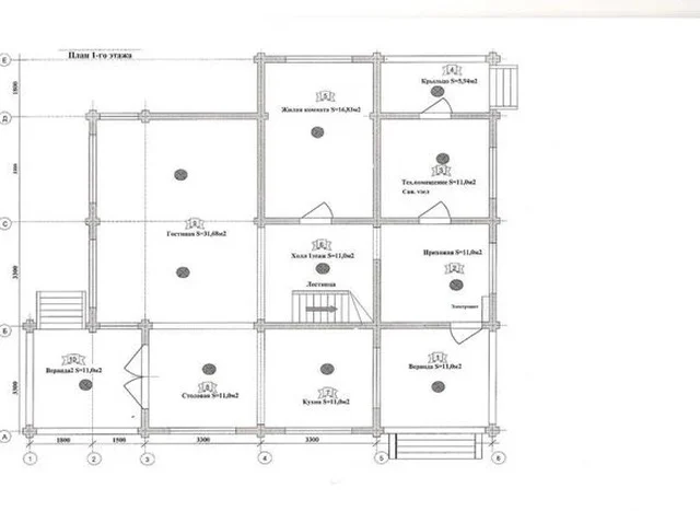
На первом этаже - холл, котельная, гостиная, санузел, столовая, кухня, выход на летнюю веранду. В общей сложности 3 выхода.
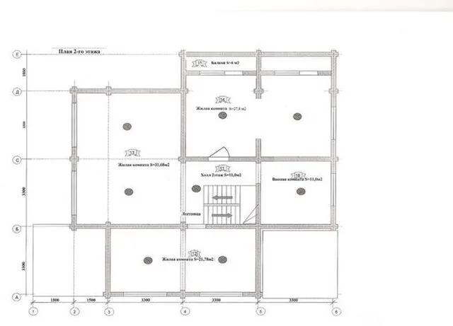
На втором этаже - холл, 3 спальни, санузел, балкон.
Возможен обмен на вертолёт, так же могу разделить участок.
Торг
Продаю в связи с переездом

Адрес

Московская область, г.о. Чехов, д. Беляево, коттеджный пос. Беляевская Опушка


Сеть городских порталов: Купить квартиру в Красногорске